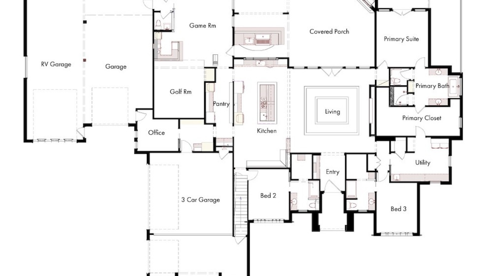
Custom Home Plans HOME PLANS CUSTOM-DESIGNED ALONGSIDE OUR CLIENTS 1 Story Home Plans 2 Story Home Plans Custom Homes Search Property Title Price 247,000 - 2,000,000 247,000 - 2,000,000 Square FootageSquare Footage3,000 - 3,500 Sqft3,500 - 4,000 Sqft4,000 - 4,500 Sqft4,500 - 5,000 Sqft5,000 - 5,500 Sqft5,500 - 6,000 Sqft6,000 - 6,500 Sqft6,500 - 7,000 Sqft7,000 - 7,500 Sqft7,500 - 8,000 Sqft8,000 - 8,500 Sqft8,500 - 9,000 Sqft9,000+ SqftBedroomsBedrooms1+2+3+4+5+6+7+BathroomsBathrooms1+2+3+4+5+6+7+Listing Setting The Monaco The Monaco Custom Home Featured Home Plans Bedrooms : 3 Bathrooms : 3.5 Square Footage : 3,923 Sqft Garages : 4 Stories : 1 $925,000 Share This Plan Share on Facebook Share on Twitter Share on Pinterest Send to Friend Property Details 3923 sqft, with 4 car and a RV garage, 3 bedroom, 3.5 bath, office, game room, craft / hobby room. The Monaco